下载APP
收藏本站
帮助中心
天天打卡
风格切换
切换到宽版
账号
自动登录
找回密码
密码
登录
注册
微信登录,快人一步
只需一步,快速开始
快捷导航
感染网
门户
Portal
论坛
BBS
头条
圈子
Group
问答中心
活动商城
@资料库
@VIP专区
#全民话题
AI文库
AI聊天
积分商城
积分捐助
课件库
法规库
视频库
工具箱
新媒体联盟
专家笔记区
专题见稿区
专题专栏区
AI问答专区
活动中心
积分商城
感控书城
技能提升
直播回放
2025年会
法规文库
专家笔记
音视频库
指标解读
感术行动
更多专栏
绑定微信
官方微信
医考圈
绑定手机
官方微博
实名认证
自编书库
论坛公告
发展历程
关于我们
搜索
搜索
热搜:
感术行动
规率行动
送检率
规范解读
口腔科
邻苯二甲醛
隔离标识
水处理
手卫生
手术室
多重耐药菌
计划
法规
本版
用户
上海国际医院感染控制论坛
»
论坛
›
重点部门
›
其他部门
›
布局改建
返回列表
发新帖
查看:
183
|
回复:
4
[求助]
布局改建
[复制链接]
冯考必过
冯考必过
当前离线
积分
856
打卡等级:热心大叔
打卡总奖励:1185
最近打卡:2026-03-17 08:31:39
发表于 2026-3-2 11:41
|
显示全部楼层
|
阅读模式
马上注册登录,享用更多感控资源,助你轻松入门。
您需要
登录
才可以下载或查看,没有账号?
注册
|
×
本帖最后由 吴晓梅 于 2026-3-2 13:43 编辑
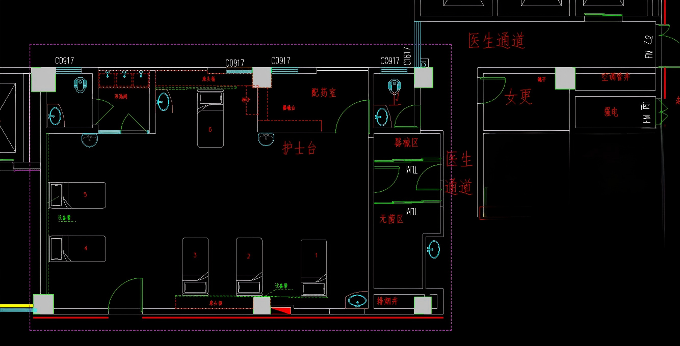
二级医院想新增一个CCU,设置6张病床,但是是旧房改造的,在心血管内科原病房的基础上使用3个房间来做CCU的改造。现在初步图纸已经画出来了,想请教一下这样画符合要求吗?如有不符处,我们需要怎么整改?患者治疗区面积84.37m2,包含污洗区,配药室、治疗区,不包含更衣区、缓冲区、器械间、无菌区。污洗区由原来的病房厕所改造,污物及医疗废物打包后密闭从污洗区使用转运车从患者通道转运出去来,这样的模式是否可以?器械间跟无菌间采用推拉门的方式,门口开口朝向开在缓冲区是否可以执行,之前的都是开口在治疗区的,不知道开口在缓冲区是否可以?麻烦您帮忙指导一下
回复
使用道具
举报
天儿1
天儿1
当前离线
积分
584
打卡等级:热心大叔
打卡总奖励:796
最近打卡:2026-03-16 09:40:11
发表于 2026-3-2 13:23
来自手机
|
显示全部楼层
本帖最后由 天儿1 于 2026-3-2 15:14 编辑
个人认为这个布局重点考虑了工作人员的清洁区,而最重要的病室布局患者床位的安排没有占据主导位置,CCU诊室没有缓冲区,而工作人员进入的通道安排缓冲区,相对于工作人员入口本来就是清洁区进入,更应该关注的是患者入口由污染区进入如何缓冲,还有CCU的床位没有一个单间,也可能是空间小的因素
回复
顶
踩
使用道具
举报
小猴子波波
小猴子波波
当前离线
积分
11981
打卡等级:热心大叔
打卡总奖励:2085
最近打卡:2026-03-17 08:42:08
发表于 2026-3-2 14:02
|
显示全部楼层
建议设置至少一个单间,方便传染性疾病患者或者多重耐药患者使用。另外,名称应符合规范要求,“配药室”改为“治疗准备室”
回复
顶
踩
使用道具
举报
马雨露
马雨露
当前离线
积分
731
发表于 2026-3-2 16:48
|
显示全部楼层
应设置一单间,放置传染性疾病患者
回复
顶
踩
使用道具
举报
快乐人生邮箱
快乐人生邮箱
当前离线
积分
5115
打卡等级:热心大叔
打卡总奖励:1907
最近打卡:2026-03-17 07:51:02
发表于 2026-3-4 11:41
|
显示全部楼层
器械室、无菌室门开在缓冲区感觉不太合适,因为在抢救患者需使用器械时护士不可能更换衣服在去拿,这样就污染了缓冲区,失去缓冲区的意义了
回复
顶
踩
使用道具
举报
返回列表
发新帖
高级模式
B
Color
Image
Link
Quote
Code
Smilies
您需要登录后才可以回帖
登录
|
注册
|
本版积分规则
发表回复
回帖并转播
回帖后跳转到最后一页
Copyright © 2007-2025
上海国际医院感染控制论坛(SIFIC)
(https://bbs.sific.com.cn/) 版权所有 All Rights Reserved.
E-mail:sific2007@163.com QQ:2420400092(小小牧童)
Powered by
Discuz!
X3.5 技术支持:
上海莫畏信息科技有限公司
|
沪ICP备16047626号-1
快速回复
返回顶部
返回列表